ROOMS
お部屋について
 
ROOMS
 
お部屋について
31290789_954673028017699_4150093526505357312_n.jpg 31301529_954673061351029_49763870503337984_n.jpg 31282826_954673074684361_2082707861774794752_n.jpg
Aタイプ

【価格】2階 調整中、3階 調整中
【間取り】1LDK
【専有面積】40.92㎡
【建物構造】鉄筋コンクリート造
【所在】2階、3階
【築年月】2014年6月中旬
【設備・条件】エレベーター、デザイナーズ、閑静な住宅街、内階段、敷地内ゴミ置き場、防犯カメラ

31290789_954673028017699_4150093526505357312_n.jpg 31301529_954673061351029_49763870503337984_n.jpg
 

注意:写真は同じ間取りの2階のものです。窓の外は庭になります。

A-1タイプ

【価格】一階 調整中
【間取り】1LDK
【専有面積】40.92㎡
【建物構造】鉄筋コンクリート造
【所在】2階、3階
【築年月】2014年6月中旬
【設備・条件】エレベーター、デザイナーズ、閑静な住宅街、内階段、敷地内ゴミ置き場、防犯カメラ

31290789_954673028017699_4150093526505357312_n.jpg 31301529_954673061351029_49763870503337984_n.jpg 31282826_954673074684361_2082707861774794752_n.jpg
 
Aタイプ
【価格】 2階 調整中、3階 調整中
【間取り】1LDK
【専有面積】40.92㎡
【建物構造】鉄筋コンクリート造
【所在】3階建て階2階3階
【築年月】2014年6月中旬
【設備・条件】エレベーター、デザイナーズ、閑静な住宅街、内階段、敷地内ゴミ置き場、防犯カメラ

 
 
31290789_954673028017699_4150093526505357312_n.jpg 31301529_954673061351029_49763870503337984_n.jpg 31282826_954673074684361_2082707861774794752_n.jpg
 
A-1タイプ
【価格】 1階 調整中
【間取り】1LDK
【専有面積】40.92㎡
【建物構造】鉄筋コンクリート造
【所在】3階建て階2階3階
【築年月】2014年6月中旬
【設備・条件】エレベーター、デザイナーズ、閑静な住宅街、内階段、敷地内ゴミ置き場、防犯カメラ

 
 
29663171_942868809198121_8253073297963266872_o.jpg 31239410_954673004684368_6484848945590697984_n.jpg 29355052_942869089198093_5804650133147709808_o.jpg
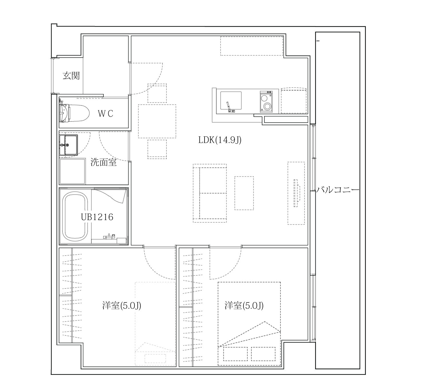
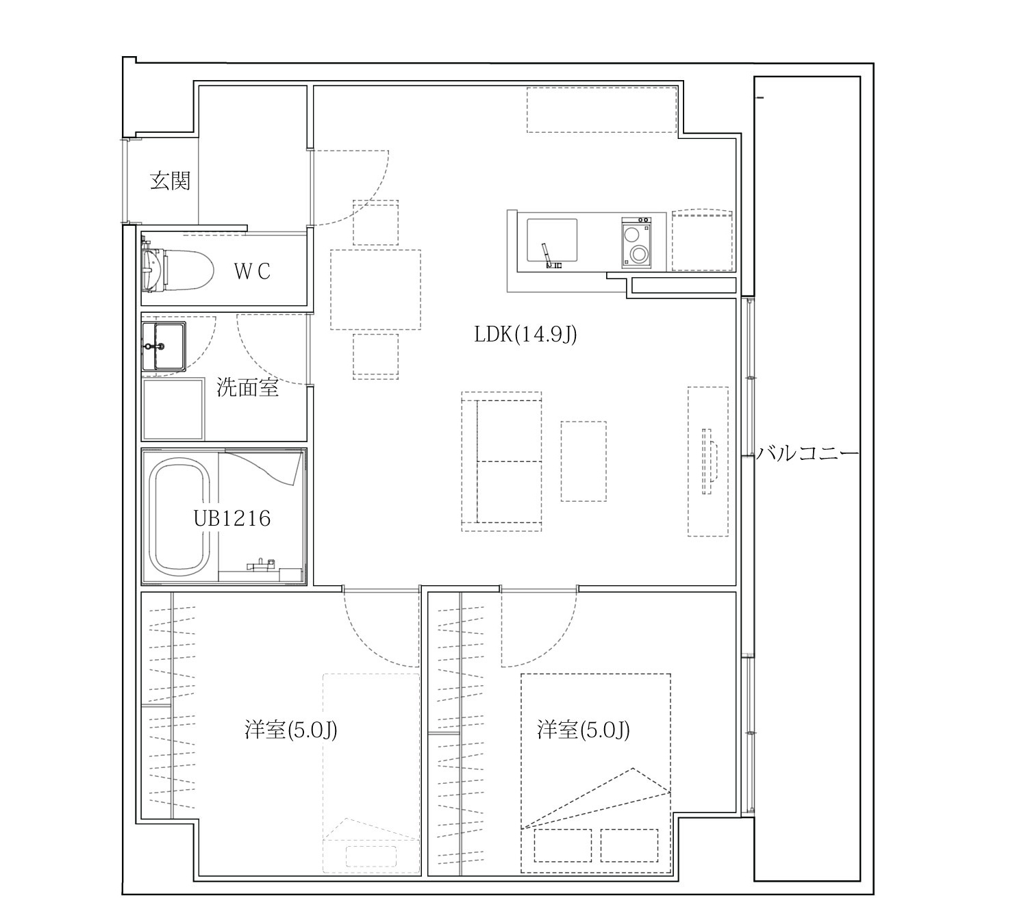
Bタイプ

【価格】2階 調整中、3階 調整中
【間取り】2LDK
【専有面積】55.48㎡
【建物構造】鉄筋コンクリート造
【所在】3階建て階2階、3階
【築年月】2014年6月中旬
【設備・条件】エレベーター、デザイナーズ、閑静な住宅街、内階段、敷地内ゴミ置き場、防犯カメラ
 
29663171_942868809198121_8253073297963266872_o.jpg 31239410_954673004684368_6484848945590697984_n.jpg 29355052_942869089198093_5804650133147709808_o.jpg
 
Bタイプ
【価格】2階 調整中、3階 調整中
【間取り】2LDK
【専有面積】55.48㎡
【建物構造】鉄筋コンクリート造
【所在】3階建て階2階、3階
【築年月】2014年6月中旬
【設備・条件】エレベーター、デザイナーズ、閑静な住宅街、内階段、敷地内ゴミ置き場、防犯カメラ
 
 
29662686_942868992531436_6121534603507468966_o.jpg 31302020_954673148017687_271962805266022400_n.jpg 31275770_954673094684359_3678597213660905472_n.jpg
Cタイプ

【価格】2階 調整中、3階 調整中
【間取り】1LDK
【専有面積】55.86㎡
【建物構造】鉄筋コンクリート造
【所在】3階建て階2階、3階
【築年月】2014年6月中旬
【設備・条件】エレベーター、デザイナーズ、閑静な住宅街、内階段、敷地内ゴミ置き場、防犯カメラ
 
29662686_942868992531436_6121534603507468966_o.jpg 31302020_954673148017687_271962805266022400_n.jpg 31275770_954673094684359_3678597213660905472_n.jpg
 
Cタイプ
【価格】2階 調整中、3階 調整中
【間取り】1LDK
【専有面積】55.86㎡
【建物構造】鉄筋コンクリート造
【所在】3階建て階2階、3階
【築年月】2014年6月中旬
【設備・条件】エレベーター、デザイナーズ、閑静な住宅街、内階段、敷地内ゴミ置き場、防犯カメラ
 
 
980855_942868935864775_27754096673993136_o.jpg 29355190_942868775864791_4304818933588615430_o.jpg 29355227_942868682531467_6286474049076353141_o.jpg 31301678_954673161351019_7067542893736493056_n.jpg 29872964_942869032531432_4491405732408052516_o.jpg
※床が格子柄のタイプは1Fのみになります。
Dタイプ

【価格】1階 調整中、2階 調整中、3階 調整中
【間取り】1LDK
【専有面積】51.57㎡
【建物構造】鉄筋コンクリート造
【所在】3階建て階1階、2階、3階
【築年月】2014年6月中旬
【設備・条件】エレベーター、デザイナーズ、閑静な住宅街、内階段、敷地内ゴミ置き場、防犯カメラ
 
 
980855_942868935864775_27754096673993136_o.jpg 29355190_942868775864791_4304818933588615430_o.jpg 29355227_942868682531467_6286474049076353141_o.jpg 31301678_954673161351019_7067542893736493056_n.jpg 29872964_942869032531432_4491405732408052516_o.jpg
※床が格子柄のタイプは1Fのみになります。
 
Dタイプ
【価格】1階 調整中、2階 調整中、3階 調整中
【間取り】1LDK
【専有面積】51.57㎡
【建物構造】鉄筋コンクリート造
【所在】3階建て階1階、2階、3階
【築年月】2014年6月中旬
【設備・条件】エレベーター、デザイナーズ、閑静な住宅街、内階段、敷地内ゴミ置き場、防犯カメラ
 
 
12232828_559961317488874_5105564113250306938_o.jpg 29871998_942868792531456_4534472955454721188_o.jpg 31275777_954673218017680_8903859038769381376_n.jpg
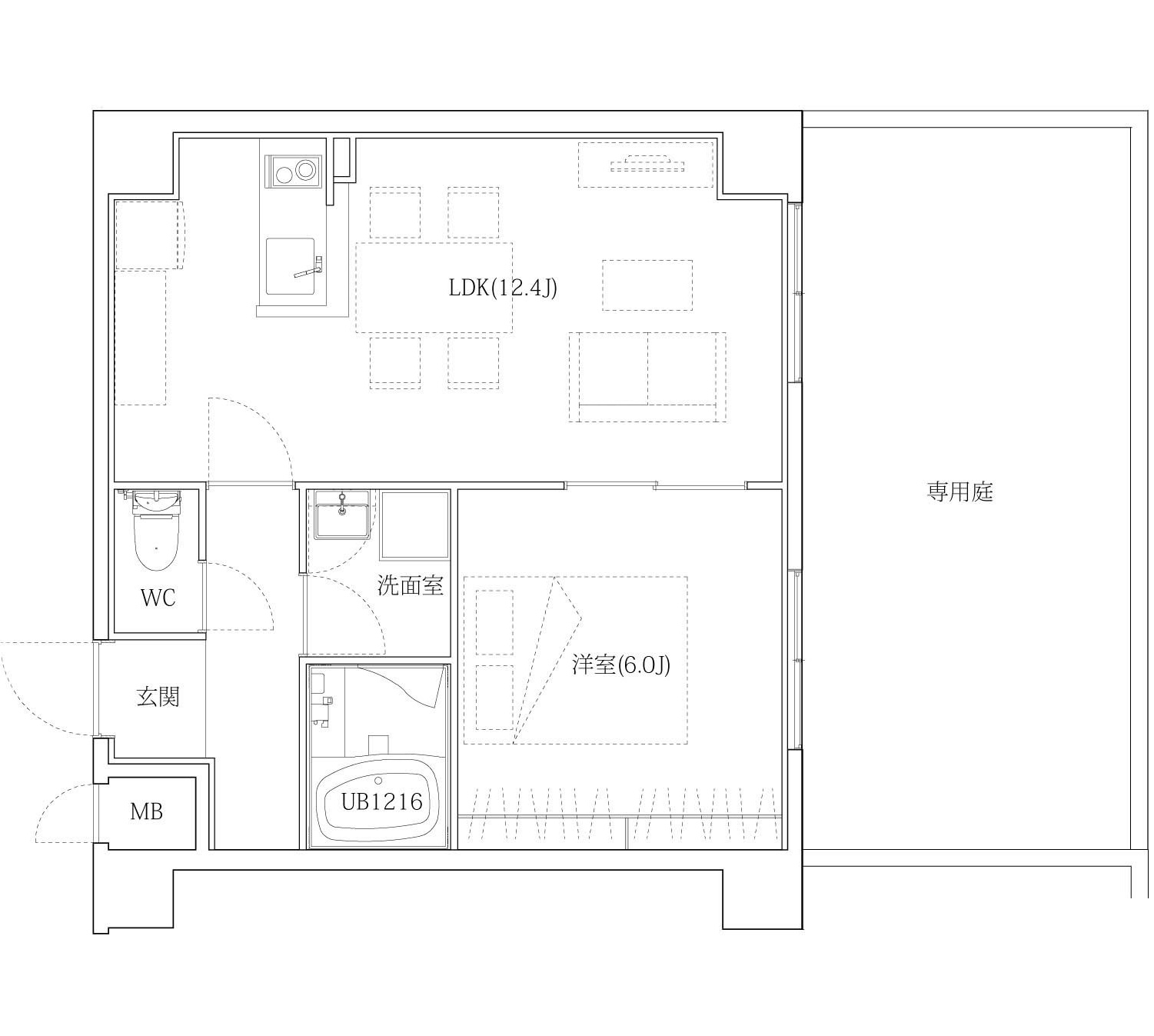
Eタイプ

【価格】1階 調整中、2階 調整中、3階 調整中
【間取り】1LDK
【専有面積】42.55㎡
【建物構造】鉄筋コンクリート造
【所在】3階建て階1階、2階、3階
【築年月】2014年6月中旬
【設備・条件】エレベーター、デザイナーズ、閑静な住宅街、内階段、敷地内ゴミ置き場、防犯カメラ
 
12232828_559961317488874_5105564113250306938_o.jpg 29871998_942868792531456_4534472955454721188_o.jpg 31275777_954673218017680_8903859038769381376_n.jpg
 
  Eタイプ
【価格】1階 調整中、2階 調整中、3階 調整中
【間取り】1LDK
【専有面積】42.55㎡
【建物構造】鉄筋コンクリート造
【所在】3階建て階1階、2階、3階
【築年月】2014年6月中旬
【設備・条件】エレベーター、デザイナーズ、閑静な住宅街、内階段、敷地内ゴミ置き場、防犯カメラ